Search

Leave a Message

Thank you for your message. I will be in touch with you shortly.

Explore Our Properties

Property Description

**Bright, Spacious, and Full of Potential - Rare Full Basement & No HOA or LOT FEES!**

Step into this warm and inviting home, where natural light fills the home. Thoughtfully designed with fresh paint inside and out, this home offers both comfort and functionality. The open kitchen is a true highlight, featuring reverse osmosis under the sink, well-maintained appliances, and natural light streaming in throughout the day--a perfect space to start your mornings or wind down in the evenings.

The primary suite offers a peaceful retreat with an ensuite full bathroom and a private, split floor plan--a layout designed for comfort and privacy.

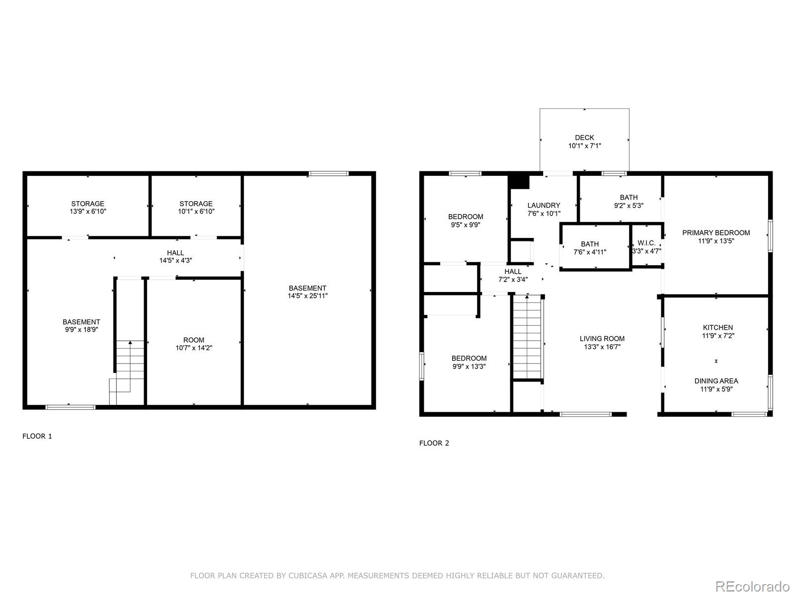
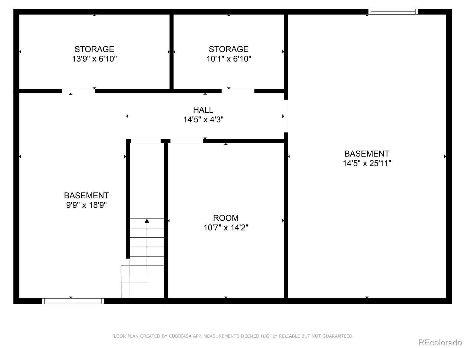
What truly sets this home apart is the RARE, FULL BASEMENT with 9ft ceilings, and NO HOA OR LOT FEES! The basement is already partially framed with approved permits, it's ready for your vision--expand your living space, create a home office, a gym, or a custom entertainment area.

Outside, you'll find a deck, large fenced yard that provides endless possibilities, while the west-facing front gives you breathtaking morning sunlight and evening sunsets from your doorstep.

Nestled in a vibrant community, this home is within minutes of shopping, dining, parks, and recreation. A short walk takes you to the nearby elementary school and park with quick access to I-76, makes commuting a breeze.

A move-in-ready home with room to grow--all under $400K! Don't miss this rare opportunity. Schedule your private showing today! Professional photos coming soon!

Overview

Property Status
Sold
Lot Size
5,250 Sq.Ft.
MLS ID
8511901
Property Type
Residential
Year Built
2000

Features & Amenities

Total Area
2,240 Sq.Ft.
Architecture Styles
Modular
Stories
1
Water Source
Public
Utilites
Cable Available, Electricity Connected, Internet Access (Wired), Natural Gas Available, Natural Gas Connected, Phone Connected
Roof
Composition
Lot Features
Level
Parking
Concrete
Heat Type
Forced Air, Natural Gas
Air Conditioning
Central Air
Laundry Room
In Unit
Appliances
Dishwasher, Dryer, Microwave, Oven, Refrigerator, Washer, Water Softener
Other Interior Features
Ceiling Fan(s), Eat-in Kitchen, Laminate Counters, Primary Suite, Smoke Free
Sewer
Public Sewer
Substructure
Concrete Perimeter, Permanent
Security Features
Carbon Monoxide Detector(s), Smoke Detector(s)
Other Exterior Features
Garden, Private Yard
Elementary School
Lochbuie
Middle School
Weld Central
High School
Weld Central
School District
Weld County RE 3-J
Sales Price
$395,000
Real Estate Tax
$902/yr

Downloads

104 Winnipeg Street

Schedule a Tour

We would love to help you see this beautiful home! As a full-service brokerage, we can help you tour. Please submit an offer, and answer questions about the buying process.

Enter a valid email

Thank you

for your interest in 104 Winnipeg Street, Lochbuie, CO 80603

back to page

I'm Interested In

104 Winnipeg Street

or
  • CallLidia Suarez

    License #100021220

    (303) 717-5499
  • 104 Winnipeg Street
    Navigate
    104 Winnipeg Street
    explore in 3d

    Follow Us On Instagram