Search

Leave a Message

Thank you for your message. I will be in touch with you shortly.

Explore Our Properties

Property Description

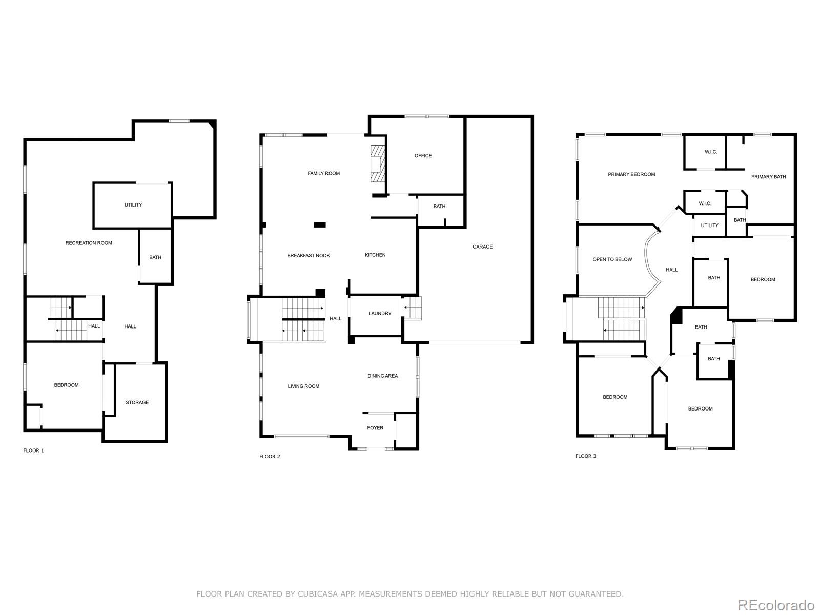
Over $150K recently invested in the completely renovated kitchen, new fireplace and built-in bookcases. If breathtaking views and serene privacy speak to your soul, this home was made for you. If you crave access to community amenities and scenic trails just steps from your door, you'll feel right at home. And if you dream of cooking in a chef-worthy kitchen with high-end appliances and custom cabinetry, this is your dream come true. This 5 bedroom, 5 bathroom house is the epitome of having it all. Thoughtfully updated and impeccably maintained, this home offers a harmonious blend of natural beauty and refined design. You'll find upgrades at every turn--from the brand new fireplace and fully finished basement to the stunning, completely remodeled kitchen and charming handcrafted built-ins. Thermador appliances and custom details like a touchless kitchen faucet and trash bin, clever corner-cabinet storage and a showstopping brick backsplash are just a few of the highlights of this amazing kitchen. High ceilings and expansive windows bathe the interior in natural light, while wood floors on the main level and stairs, plus luxury vinyl plank flooring upstairs, create a warm and cohesive flow throughout. Enjoy quiet mornings on the inviting front porch, and unwind in the evenings on the generous back patio surrounded by nature and wildlife. Nestled in one of Parker's most sought-after neighborhoods, with Fika Coffee House, a resort-style community pool, a fitness center, and miles of trails just around the corner, this home offers more than just beautiful living--it offers an incredible lifestyle. Don't miss your chance to own this one-of-a-kind home that truly has it all.

Information provided herein is from sources deemed reliable but not guaranteed and is provided without the intention that any buyer rely upon it. Listing Broker takes no responsibility for its accuracy and all information must be independently verified by buyers.

Overview

Property Status
Sold
Lot Size
7,144 Sq.Ft.
MLS ID
5845137
Property Type
Residential
Year Built
2004

Features & Amenities

Total Area
4,382 Sq.Ft.
Architecture Styles
Mountain Contemporary
View Description
Meadow, Mountain(s)
Stories
2
Garage Spaces
3.0
Water Source
Public
Utilites
Cable Available
Roof
Composition
Lot Features
Greenbelt, Landscaped, Many Trees, Meadow, Open Space, Sprinklers In Front, Sprinklers In Rear
Parking
Tandem
Heat Type
Forced Air, Natural Gas
Air Conditioning
Attic Fan, Central Air
Laundry Room
Sink
Fireplace
Family Room, Gas, Gas Log
Appliances
Dishwasher, Disposal, Dryer, Microwave, Oven, Range, Range Hood, Refrigerator, Washer, Water Softener
Other Interior Features
Breakfast Bar, Built-in Features, Ceiling Fan(s), Eat-in Kitchen, Five Piece Bath, High Ceilings, Pantry, Primary Suite, Quartz Counters, Vaulted Ceiling(s), Walk-In Closet(s), Wired for Data
Sewer
Public Sewer
HOA Amenities
Clubhouse, Fitness Center, Park, Pool, Trail(s)
Security Features
Smoke Detector(s)
Other Exterior Features
Fire Pit, Garden, Lighting, Private Yard
Elementary School
Pioneer
Middle School
Cimarron
High School
Legend
School District
Douglas RE-1
Sales Price
$930,000
Real Estate Tax
$5,820/yr
HOA
$139/mo

Downloads

12119 S Wanderlust Way

Schedule a Tour

We would love to help you see this beautiful home! As a full-service brokerage, we can help you tour. Please submit an offer, and answer questions about the buying process.

Thank you

for your interest in 12119 S Wanderlust Way, Parker, CO 80138

12119 S Wanderlust Way
Navigate

Follow Us On Instagram