Search

Leave a Message

Thank you for your message. I will be in touch with you shortly.

Explore Our Properties

Property Description

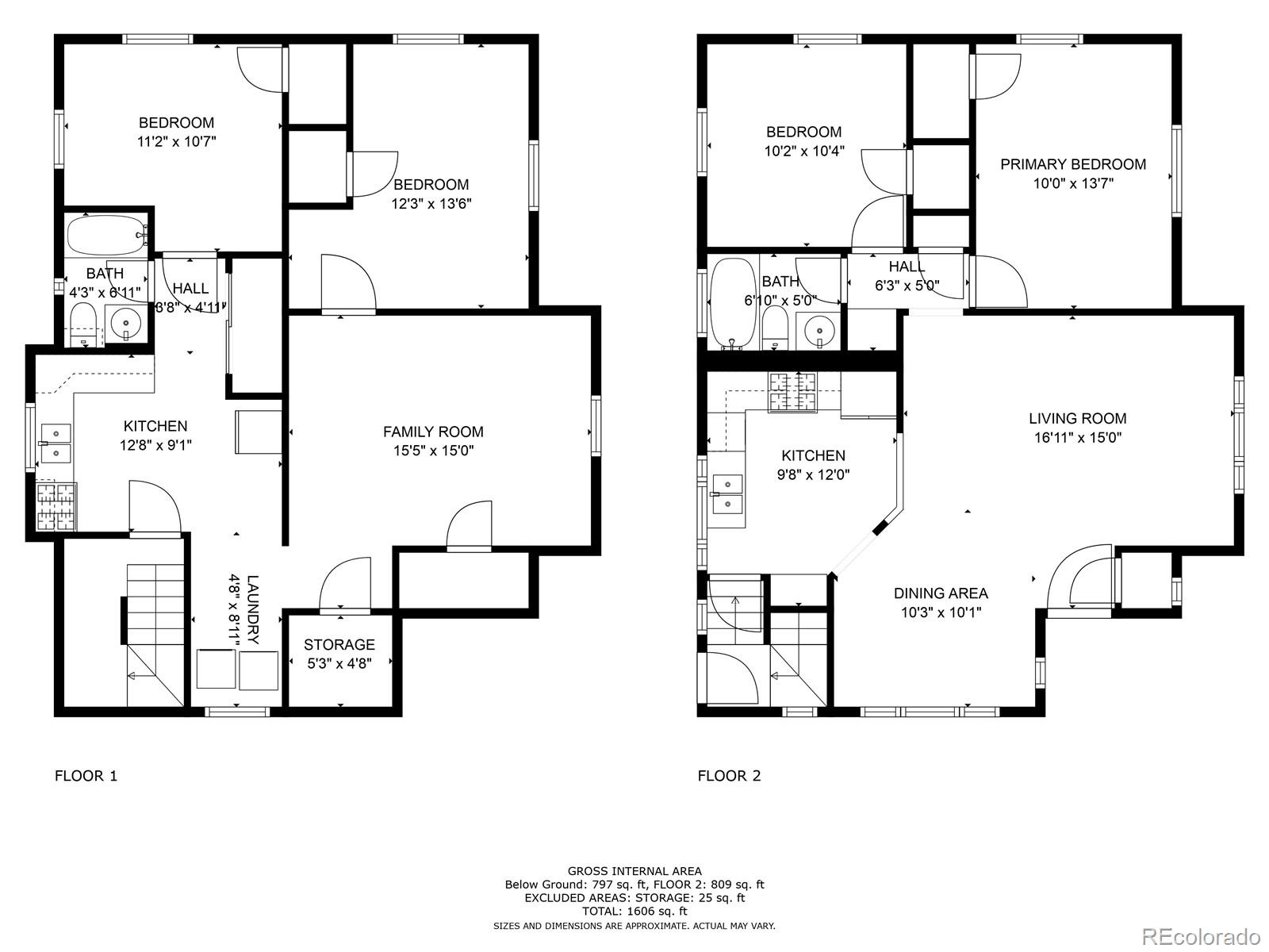
Situated in a highly sought-after neighborhood, here is a lifestyle opportunity that belongs at the top of every Denver home shopper's list. This lovely 4-bedroom, 2-bathroom home offers the enviable ease of proximity to everything that the Highlands, Sloans Lake, Edgewater & Wheat Ridge have to offer, with the added bonus of a short commute to downtown Denver and income potential lock off opportunity in the basement. Step inside and you will feel right at home, seconds after crossing the threshold-don't be surprised if you decide that this is the one. Hardwoods are visually and acoustically pleasing on the main floor. The updated kitchen has a great combination of counter space, storage, stainless steel appliances and a bar top that provides open concept living space. Two bedrooms and a beautifully updated bathroom round off the main floor. The finished basement, with the convenience of a full bathroom, can serve double duty as an income potential second living space complete with a living room, two bedrooms, a plethora of storage and kitchenette. The large, professionally landscaped yard comes with rear fencing for seclusion. The large driveway provides space for visiting vehicles and leads to a newly built detached oversized 2 1/2 car garage that doubles as a workshop, is a great home for your van or toys, and includes a huge storage loft. Make a splash in the low maintenance stock tank swimming pool, the social and visual centerpiece of the fully fenced backyard. The backyard also includes garden beds and lovely space to relax. Situated on a pleasant street lined with trees, you will love the convenience of this location. This dwelling is a rare Wheat Ridge find. No detail has been missed here; fresh paint, properly maintained systems and solar panels included make it ready for you to move right in. This well cared for home is ready for you to come take a look this weekend and decide if it is the right place at the right time for you, schedule a showing today!

Overview

Property Status
Sold
Lot Size
6,650 Sq.Ft.
MLS ID
3455932
Property Type
Residential
Year Built
1945

Features & Amenities

View Description
Mountain(s)
Stories
1
Garage Spaces
2.0
Water Source
Public
Utilites
Cable Available
Roof
Composition
Lot Features
Landscaped, Near Public Transit, Sprinklers In Rear
Parking
Concrete, Heated Garage
Heat Type
Forced Air
Air Conditioning
Attic Fan, Central Air, Other
Laundry Room
In Unit
Appliances
Dishwasher, Disposal, Dryer, Oven, Refrigerator, Self Cleaning Oven, Washer
Other Interior Features
Ceiling Fan(s), Eat-in Kitchen, In-Law Floor Plan, Open Floorplan, Pantry
Sewer
Public Sewer
Other Exterior Features
Garden, Private Yard, Spa/Hot Tub
Elementary School
Lumberg
Middle School
Jefferson
High School
Jefferson
School District
Jefferson County R-1
Sales Price
$800,000
Real Estate Tax
$2,747/yr

Downloads

2961 Ames Street

Schedule a Tour

We would love to help you see this beautiful home! As a full-service brokerage, we can help you tour. Please submit an offer, and answer questions about the buying process.

Thank you

for your interest in 2961 Ames Street, Wheat Ridge, CO 80214

2961 Ames Street
Navigate
2961 Ames Street
explore in 3d

Follow Us On Instagram