Search

Leave a Message

Thank you for your message. I will be in touch with you shortly.

Explore Our Properties

Property Description

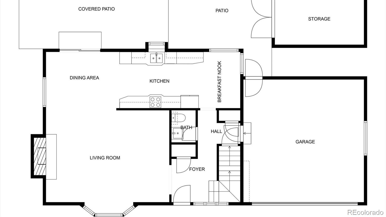
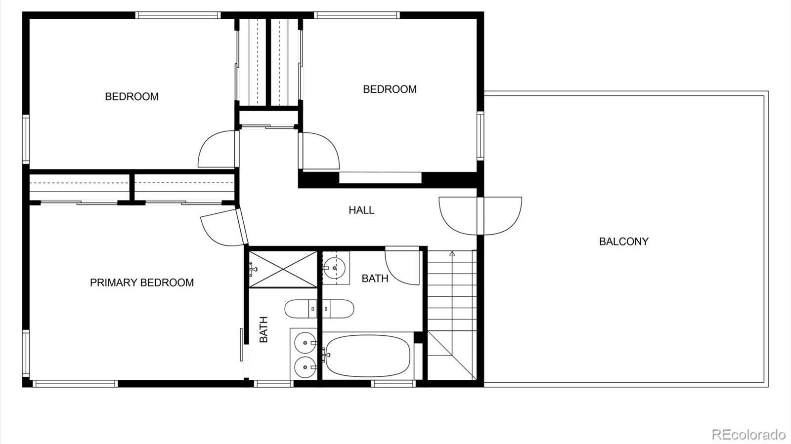
Welcome to 3384 South Elmira Court! Located at the end of a peaceful cul-de-sac, this charming two-story 3 bed, 3 bath home has been lovingly maintained by the same owner for 27 years and is full of potential. The main level offers a living room w/ wood burning fireplace, formal dining space, large gally kitchen, breakfast nook & powder bath. The main level is mainly hardwood flooring. The upstairs has hardwood flooring. The primary suite is spacious w/ two large wall closets & an updated ensuite bath. The 2 secondary bedrooms are also spacious w/ large wall closets. Just off the second-floor hallway is access to a deck. Enjoy summer evenings or morning coffee on the spacious deck that sits above the garage, offering elevated views & additional outdoor living space. The basement has original construction finishes. There is a wood burning fireplace in the large family room which also has a dry-bar space. There is an office/future bedroom w/ a large cedar-lined storage closet. The utility room offers storage space & the laundry area. Situated on a nearly 10,000 sq ft lot, the property features a beautifully zero-scaped front yard & a landscaped backyard--perfect for outdoor entertainment w/ a large patio & convenient storage shed. Regarding nearby amenities: Tee off across the street at Kennedy golf course, take a stroll on the Highline Canal trail, bike on the Cherry Creek path or at the beautiful Hampden Heights Park, and many more parks that Denver has to offer. There's lots of shopping & surrounding restaurants: Super Walmart & Target, Whole Foods, Benihana & even furniture store options! There is quick access to both I-25 & I-225 w/ the Denver Tech Center close by as well. The Dayton light rail station is 1.5 miles away. Priced to allow for personalization, 3384 South Elmira Court is a rare opportunity to create your dream home while building equity in a desirable Denver neighborhood. Don't miss your chance to unlock this home's full potential!

Overview

Property Status
Sold
Lot Size
9,934 Sq.Ft.
MLS ID
1628785
Property Type
Residential
Year Built
1963

Features & Amenities

Total Area
2,666 Sq.Ft.
Neighborhood
Denver
Architecture Styles
Traditional
Stories
2
Garage Spaces
2.0
Water Source
Public
Roof
Composition
Lot Features
Cul-De-Sac, Landscaped, Level, Many Trees, Near Public Transit
Heat Type
Forced Air
Air Conditioning
Central Air
Fireplace
Basement, Living Room
Appliances
Dishwasher, Disposal, Dryer, Microwave, Oven, Range, Refrigerator, Washer
Other Interior Features
Breakfast Nook, Ceiling Fan(s)
Sewer
Public Sewer
Other Exterior Features
Rain Gutters
Elementary School
Joe Shoemaker
Middle School
Hamilton
High School
Thomas Jefferson
School District
Denver 1
Sales Price
$600,000
Real Estate Tax
$2,469/yr
Zoning
S-SU-F

Downloads

3384 S Elmira Court

Schedule a Tour

We would love to help you see this beautiful home! As a full-service brokerage, we can help you tour. Please submit an offer, and answer questions about the buying process.

Enter a valid email

Thank you

for your interest in 3384 S Elmira Court, Denver, CO 80231

back to page
3384 S Elmira Court
Navigate
Denver

Explore Denver

read more

Follow Us On Instagram