Search

Leave a Message

Thank you for your message. I will be in touch with you shortly.

Explore Our Properties

Property Description

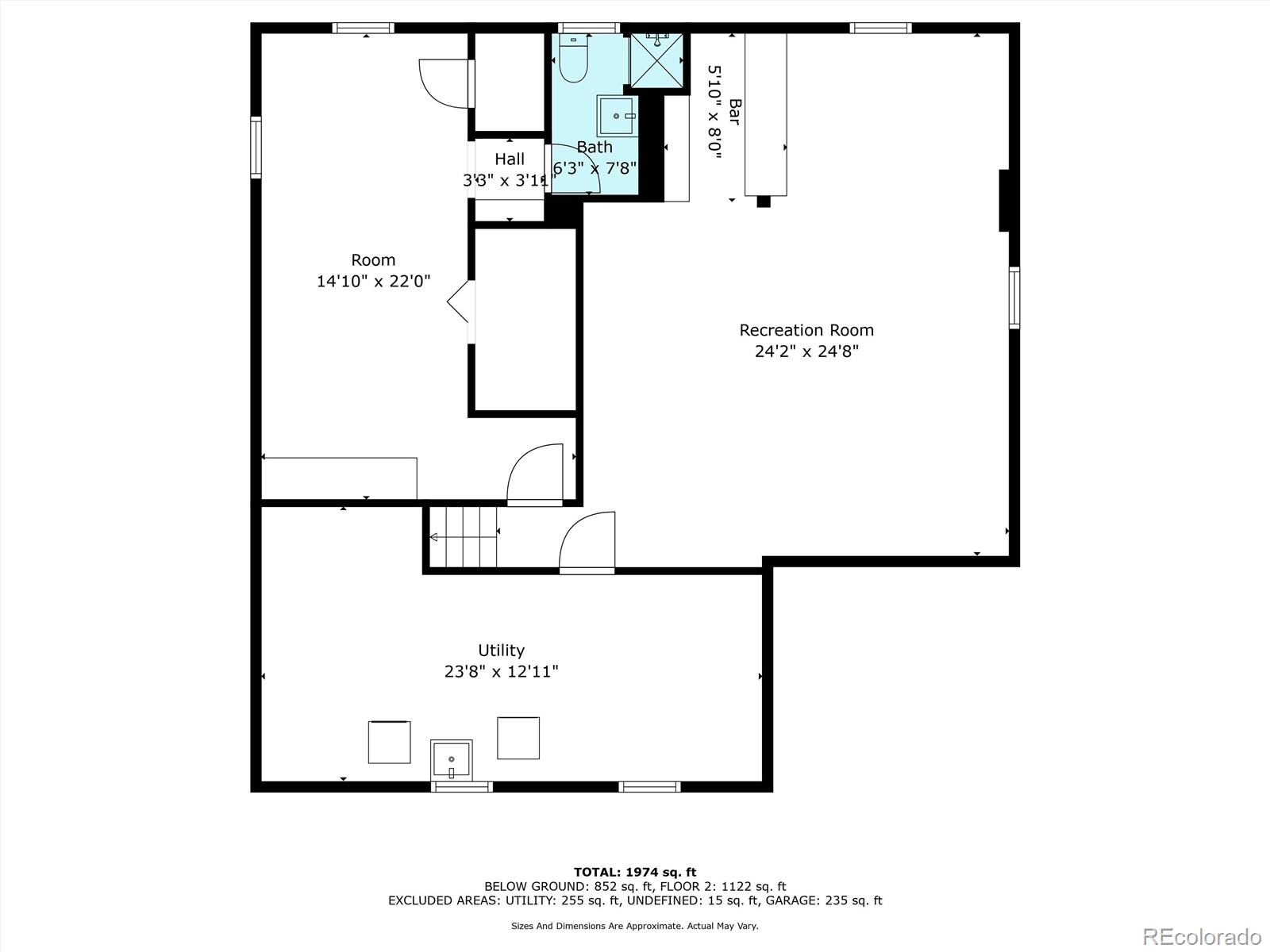
Solid brick ranch-style home in highly sought-after Virginia Village! This charming 4-bedroom, 3-bath property features beautiful hardwood floors, a spacious dining room, and a bright, inviting layout. The large finished basement offers additional living space and versatility. Situated on a generously sized corner lot, the home includes a covered patio, an attached one-car garage, and a carport. The yard has been well cared for, with lush, healthy grass. Centrally located with easy access to schools, shopping, and I-25. A wonderful opportunity to make this well-maintained home your own. Sold as-is.
Information provided herein is from sources deemed reliable but not guaranteed, Buyer/Broker to verify information contained herein.

Overview

Property Status
Sold
Lot Size
6,020 Sq.Ft.
MLS ID
8268611
Property Type
Residential
Year Built
1956

Features & Amenities

Total Area
2,440 Sq.Ft.
Neighborhood
Denver
Stories
1
Garage Spaces
1.0
Water Source
Public
Roof
Composition
Lot Features
Corner Lot, Level
Heat Type
Forced Air
Air Conditioning
Evaporative Cooling
Fireplace
Living Room
Appliances
Dishwasher, Dryer, Microwave, Oven, Refrigerator, Washer
Sewer
Public Sewer
Other Exterior Features
Rain Gutters
Elementary School
Ellis
Middle School
Merrill
High School
Thomas Jefferson
School District
Denver 1
Sales Price
$487,000
Real Estate Tax
$2,598/yr
Zoning
S-SU-D

Downloads

5582 E Colorado Avenue

Schedule a Tour

We would love to help you see this beautiful home! As a full-service brokerage, we can help you tour. Please submit an offer, and answer questions about the buying process.

Thank you

for your interest in 5582 E Colorado Avenue, Denver, CO 80222

5582 E Colorado Avenue
Navigate
Denver

Explore Denver

read more
5582 E Colorado Avenue
explore in 3d

Follow Us On Instagram