Search

Leave a Message

Thank you for your message. I will be in touch with you shortly.

Explore Our Properties

Property Description

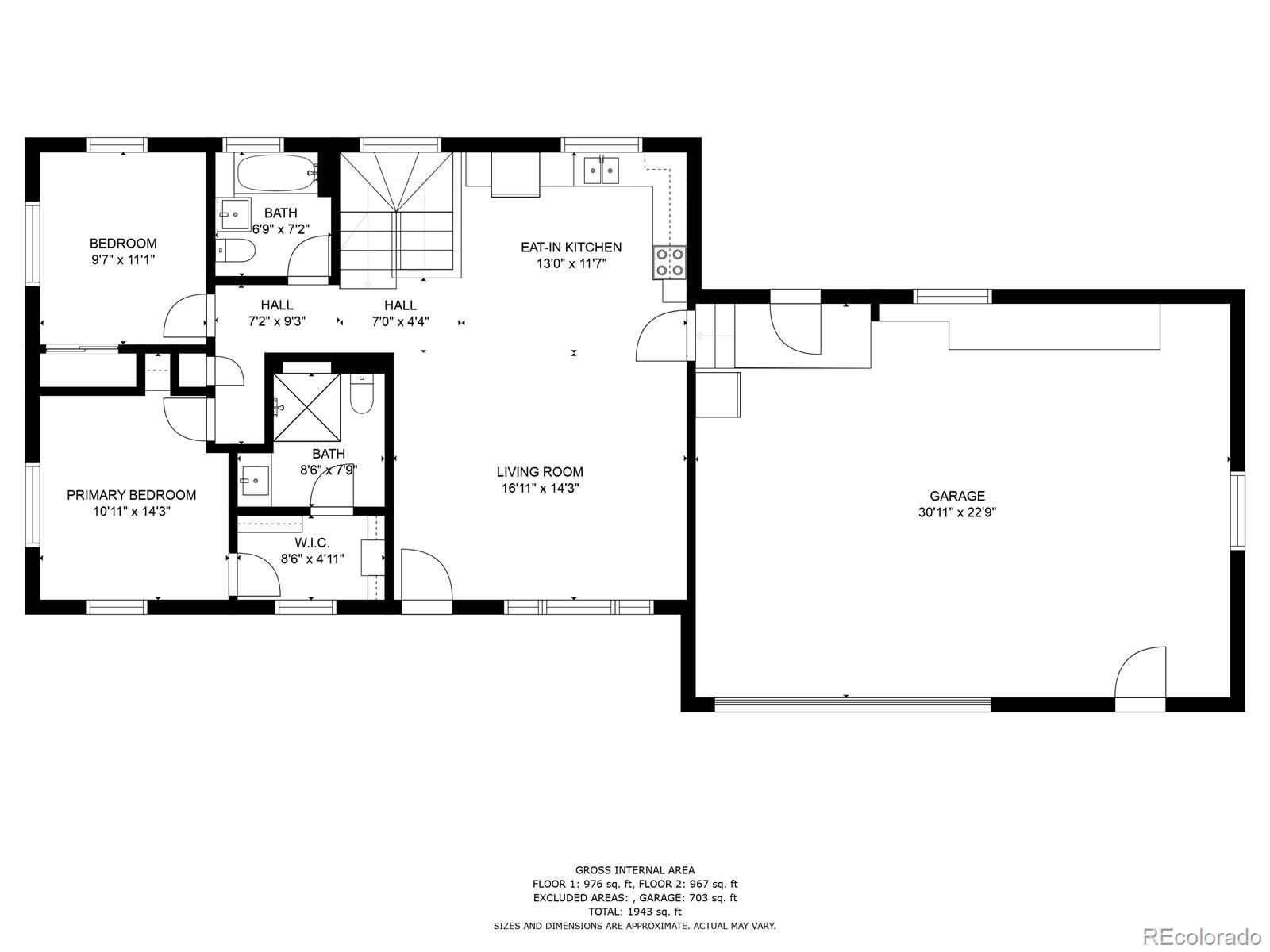
INCREDIBLE OPPORTUNITY TO GET AN AMAZING HOME WITH A 2.25% ASSUMABLE FHA LOAN! Stunningly remodeled beautiful bright open floorplan, with high performance and low maintenance implemented in design and finish. These include new smooth walls with new insulation in the interior and exterior walls & ceiling for warmth and sound-proofing, LED light wells for soft, ambient light, reinforced subfloors with solid oak Bruce flooring, new wide staircase with custom handrail, Aira vent and outlet recesses, fitted with Decora Plus switches, dimmers and outlets for that clean finish, and new shaker style doors on main. New electrical package. Modern kitchen features contrasting cabinets with pantry, concrete countertop, new range hood & stylish backsplash. The spa-like primary bedroom suite provides a peaceful retreat with brand new carpet, walk-in closet, and a new primary bathroom of your dreams! Enjoy high-end shower with rainfall or hand held showerheads while listening to your favorite tunes on the hidden Bose Bluetooth speaker system. The remodeled main floor bathroom provides a bright, fresh space with an edge lit mirror and beautiful tile floor. The large recreation room boasts a cozy fireplace, and the 3rd bedroom is now an en-suite with a renovated 3/4 bathroom. Enjoy your morning coffee on the backyard patio or entertain family and friends, with raised flower beds for Summer color. Expanded 3 car garage perfect for the car enthusiast with a workshop area, 220V, storage, and gas heater, while the side of the home provides a perfect parking spot for an RV. Vivint Smart Home System, with cameras, thermostat, doorbell and garage door control. Monitoring may be assumed at closing. All Measurements approximate. Information provided herein is from sources deemed reliable but not guaranteed and is provided without the intention that any buyer rely upon it. Listing Broker takes no responsibility for its accuracy and all information must be independently verified by buyers.

Overview

Property Status
Sold
Lot Size
6,791 Sq.Ft.
MLS ID
5728798
Property Type
Residential
Year Built
1958

Features & Amenities

Neighborhood
Lakewood
Architecture Styles
Bungalow
Stories
1
Garage Spaces
3.0
Water Source
Public
Utilites
Electricity Connected, Natural Gas Connected
Roof
Composition
Lot Features
Corner Lot, Sloped
Parking
Concrete, Exterior Access Door, Heated Garage, Lighted, Oversized, Smart Garage Door
Heat Type
Forced Air, Natural Gas
Air Conditioning
Central Air
Fireplace
Basement, Wood Burning
Appliances
Dishwasher, Disposal, Gas Water Heater, Microwave, Range, Range Hood, Refrigerator
Other Interior Features
Built-in Features, Concrete Counters, Eat-in Kitchen, Open Floorplan, Pantry, Primary Suite, Radon Mitigation System, Smart Thermostat, Sound System, Utility Sink, Walk-In Closet(s)
Sewer
Public Sewer
Substructure
Slab
Security Features
Security System, Smart Cameras, Smart Security System, Smoke Detector(s), Video Doorbell
Other Exterior Features
Dog Run, Private Yard, Rain Gutters
Elementary School
Lasley
Middle School
Alameda Int'l
High School
Alameda Int'l
School District
Jefferson County R-1
Sales Price
$617,000
Real Estate Tax
$2,659/yr

Downloads

6275 W Louisiana Avenue

Schedule a Tour

We would love to help you see this beautiful home! As a full-service brokerage, we can help you tour. Please submit an offer, and answer questions about the buying process.

Thank you

for your interest in 6275 W Louisiana Avenue, Lakewood, CO 80232

6275 W Louisiana Avenue
Navigate
Lakewood

Explore Lakewood

read more
6275 W Louisiana Avenue
explore in 3d

Homes on Denver & Beyond

Featured Properties

  • 505 Meadowlark Drive For Sale

    $610,000

    505 Meadowlark Drive, Lakewood, CO 80226

    • 3 Beds
    • 2 Baths
    • 1,558 Sq.Ft.
  • 6380 W Byers Place For Sale

    $430,000

    6380 W Byers Place, Lakewood, CO 80226

    • 2 Beds
    • 3 Baths
    • 1,174 Sq.Ft.
View All Properties

Follow Us On Instagram