Search

Leave a Message

Thank you for your message. I will be in touch with you shortly.

Explore Our Properties

Property Description

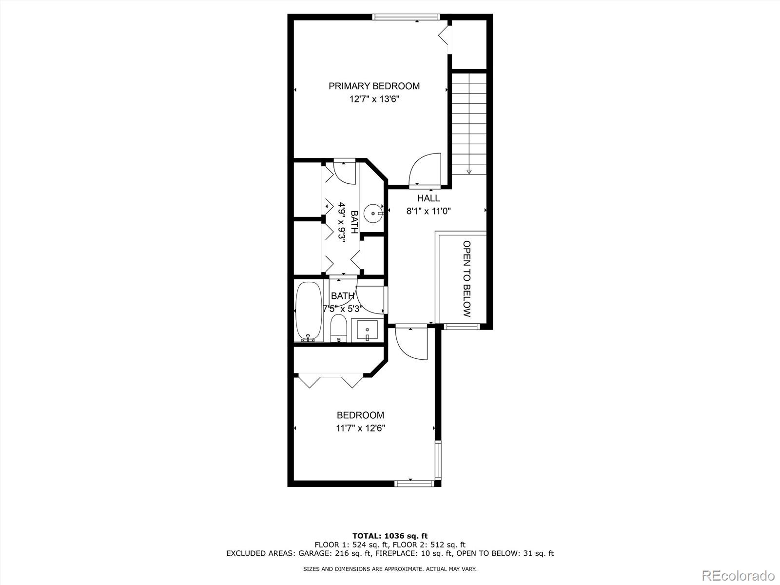
This cute townhome offers a lot - vaulted ceilings, new interior paint, attached garage, in unit laundry, low monthly HOA fee, fenced backyard, abundance of natural light, backs to open space and great location! The main floor offers wood floors, half guest bath, storage and open floor plan. The family room with cozy fireplace, vaulted ceilings and access to the backyard feels spacious. Kitchen opens to the dining room, making engagement with your guests easy! With the open floor plan, you can create the gathering areas you need. Many vaulted ceilings and skylights help bring in even more sunshine! Pass through the laundry area off the kitchen for direct access to the garage (which is insulted and includes built-in shelving). Upstairs is a full bathroom with access to a private primary bath with sink/vanity and lots of closet space. So much storage with the pantry, hall coat closet, upstairs linen cabinets and all the space in the garage! With the recently painted interior, the home boasts many updated finishes, including laminate wood floors as well as updates in both bathrooms with new vanities, toilets, tiles floors and more! In 2018, all the windows were replaced along with the furnace, water heater, and in 2017 - new central air conditioning. Relax on the newly stained deck (2024) in the private fenced backyard that backs to open space. All appliances are included - even the washer and dryer! The HOA installed a new roof (2023), gutters and skylight! This move-in-ready home is also in a great location near shops, restaurants, public transportation, Chatfield State Park and easy access to C-470! All info deemed reliable but buyer to verify all information. *Seller will consider all offers and open to concessions (rate buy down, closing costs, etc)* Relax, live and enjoy this home with easy access to the mountains or downtown so you can lock & go since the exterior maintenance is worry-free as the HOA beautifully maintains the home and the community.

Overview

Property Status
Sold
Lot Size
958 Sq.Ft.
MLS ID
4276588
Property Type
Townhouse
Year Built
1984

Features & Amenities

Total Area
1,028 Sq.Ft.
Architecture Styles
Contemporary
Stories
2
Garage Spaces
1.0
Water Source
Public
Utilites
Cable Available, Electricity Available, Electricity Connected
Roof
Composition
Lot Features
Greenbelt, Near Public Transit, Open Space
Parking
Concrete, Finished, Insulated Garage, Oversized, Storage
Heat Type
Forced Air, Natural Gas
Air Conditioning
Central Air
Laundry Room
In Unit
Fireplace
Family Room, Wood Burning
Appliances
Dishwasher, Disposal, Dryer, Gas Water Heater, Microwave, Oven, Range, Refrigerator, Self Cleaning Oven, Washer
Other Interior Features
Ceiling Fan(s), Entrance Foyer, High Ceilings, Laminate Counters, Open Floorplan, Pantry, Primary Suite, Smoke Free, Vaulted Ceiling(s), Walk-In Closet(s)
Sewer
Public Sewer
Security Features
Carbon Monoxide Detector(s), Smoke Detector(s)
Other Exterior Features
Private Yard, Rain Gutters
Elementary School
Stony Creek
Middle School
Deer Creek
High School
Chatfield
School District
Jefferson County R-1
Sales Price
$430,000
Real Estate Tax
$1,987/yr
HOA
$295/mo
Zoning
P-D

Downloads

6864 S Dover Way

Schedule a Tour

We would love to help you see this beautiful home! As a full-service brokerage, we can help you tour. Please submit an offer, and answer questions about the buying process.

Thank you

for your interest in 6864 S Dover Way, Littleton, CO 80128

6864 S Dover Way
Navigate
6864 S Dover Way
explore in 3d

Follow Us On Instagram