Search

Leave a Message

Thank you for your message. I will be in touch with you shortly.

Explore Our Properties

Property Description

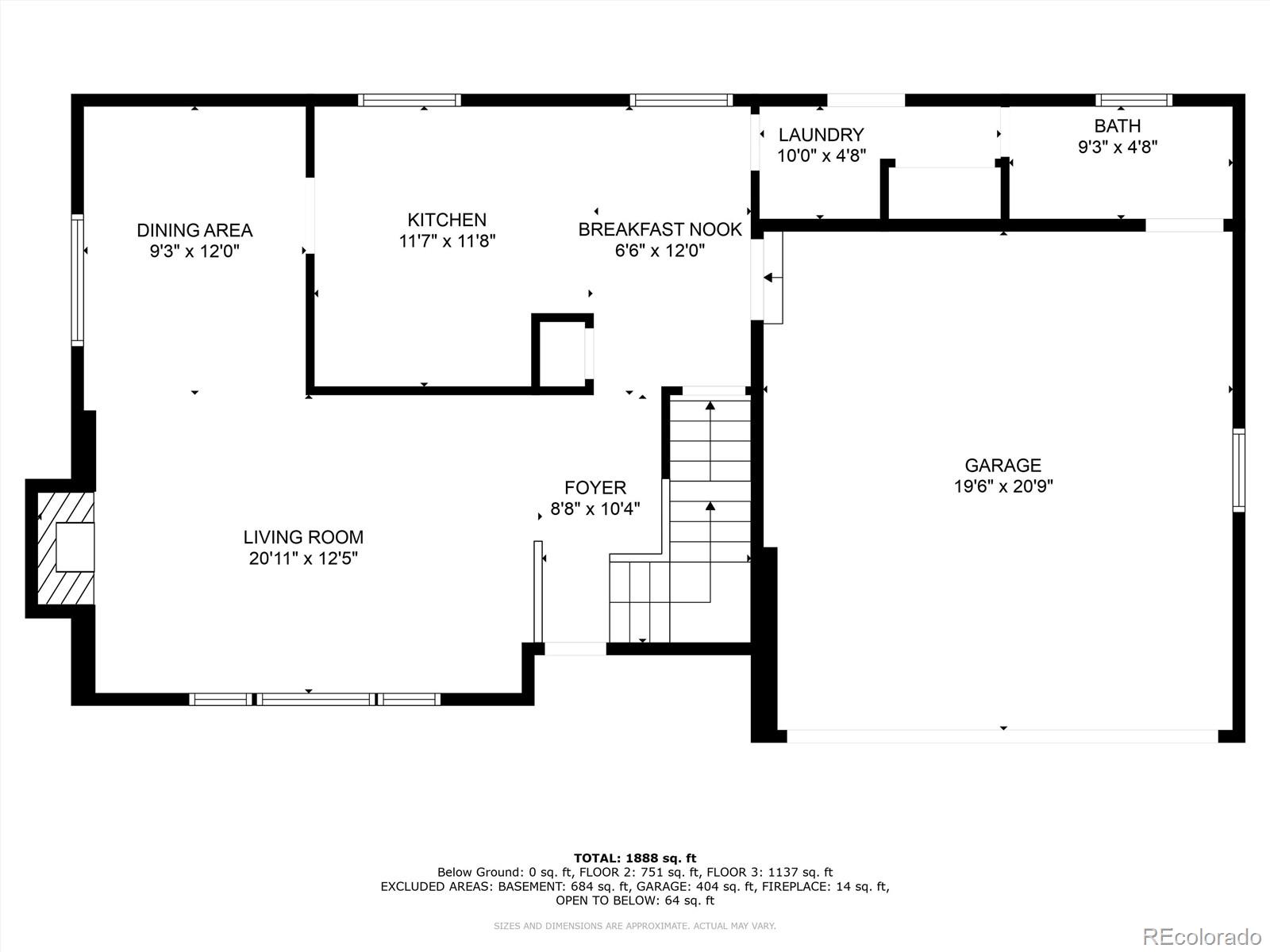
Welcome to 8124 W 71st Avenue near Old Town Arvada - a MUST SEE! One owner, well built with unique charm, and ready for you. Curb appeal abounds with the mature landscape, covered front patio, arches, upper level deck. The home features 3 bedrooms, 3 bathrooms, entertaining spaces, 2 decks, 2 patios, a large lot, basement, and a great location. An Entertainers Dream with gathering areas on both levels, as well as, front and rear patios/decks. Upon entering the foyer, you'll experience the unique qualities of this property. The main living room is accented by a picture window and gas fireplace. Newer appliances, counter space and an eat-in area are found in the well-planned kitchen. The laundry area features cabinet storage. The guest bath is a great size and has access from/to the garage. The upper level has a fantastic family room - perfect for family gatherings, relaxing, and entertaining with its access to the front and rear decks. The two secondary bedrooms are of good size and have views. A walk-in closet, wall length windows, and a 3/4 bath are found in the Primary bedroom. The basement is open with several windows and ready for your creativity! There is extra storage space in the attached 2 car garage. The rear yard features a patio extending the entire length of the house and an upper deck with views of the mountains and Denver. The yard is private, flat, and fenced with beautiful flower gardens. The lot extends past the rear fence several feet for another gardening area. New Roof in 2024! Located within biking distance to Old Town Arvada and only minutes from I-70 and Hwy 93 everything is within easy reach. Schedule a showing today - this home will be gone in a blink!
Information provided herein is from sources deemed reliable but not guaranteed and is provided without the intention that any buyer rely upon it. Listing Broker takes no responsibility for its accuracy and all information must be independently verified by buyers.

Overview

Property Status
Sold
Lot Size
9,386 Sq.Ft.
MLS ID
3072424
Property Type
Residential
Year Built
1967

Features & Amenities

Total Area
2,768 Sq.Ft.
Architecture Styles
Mid-Century Modern
View Description
City, Mountain(s)
Stories
2
Garage Spaces
2.0
Water Source
Public
Utilites
Cable Available, Electricity Connected, Natural Gas Connected, Phone Connected
Roof
Composition
Lot Features
Landscaped, Level, Sprinklers In Front, Sprinklers In Rear
Parking
Concrete, Dry Walled, Storage
Heat Type
Forced Air
Air Conditioning
Central Air
Other Interior Features
Built-in Features, Eat-in Kitchen, Entrance Foyer, High Ceilings, Laminate Counters, Smoke Free, Walk-In Closet(s)
Sewer
Public Sewer
Substructure
Concrete Perimeter
Other Exterior Features
Balcony, Private Yard, Rain Gutters
Elementary School
Peck
Middle School
Arvada K-8
High School
Arvada
School District
Jefferson County R-1
Sales Price
$690,000
Real Estate Tax
$3,657/yr

Downloads

8124 W 71st Avenue

Schedule a Tour

We would love to help you see this beautiful home! As a full-service brokerage, we can help you tour. Please submit an offer, and answer questions about the buying process.

Enter a valid email

Thank you

for your interest in 8124 W 71st Avenue, Arvada, CO 80004

back to page
8124 W 71st Avenue
Navigate

Follow Us On Instagram