Search

Leave a Message

Thank you for your message. I will be in touch with you shortly.

Explore Our Properties

Property Description

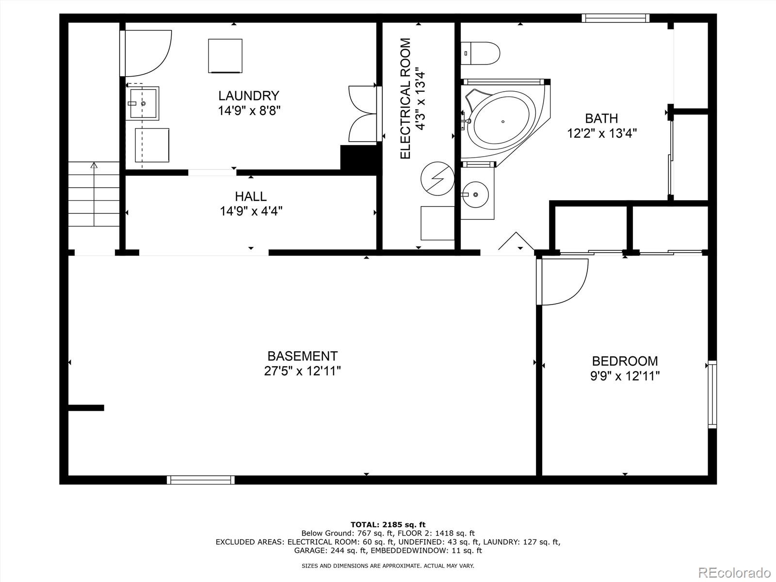
Amazing opportunity with a ranch home nestled in the Far Horizons neighborhood. This charming residence boasts 4 bedrooms, 2 bathrooms, and 2,240 finished square feet of living space. As you step inside, you will notice fresh paint throughout the home and new carpet in the basement and on the stairs. The cast iron sewer line has been replaced, adding significant value to the property.

One of the standout features of this property is its solar panels, which significantly offset your electric bill. The main level highlights 3 bedrooms, a full bathroom, a spacious living room, and an eat-in kitchen area. French doors off the kitchen lead to a fully enclosed room in the rear, providing additional space for relaxation or entertainment.

The fully fenced backyard is perfect for outdoor activities. The basement includes a large family room, an additional bedroom (non-conforming), a second oversized full bathroom, and a generously sized laundry room. The attached one-car garage includes an additional carport on the side, offering convenient covered parking. There is a shed off the back of the carport and a detached shed in the backyard, providing extra storage space. Plus, there is ample parking space beside the carport for your RV or boat.

Contact the listing agent for more details and to schedule a viewing.

Overview

Property Status
Sold
Lot Size
8,410 Sq.Ft.
MLS ID
7316832
Property Type
Residential
Year Built
1961

Features & Amenities

Total Area
2,240 Sq.Ft.
Stories
1
Garage Spaces
1.0
Water Source
Public
Utilites
Cable Available, Electricity Connected, Natural Gas Available, Natural Gas Connected
Roof
Composition
Lot Features
Level
Parking
Concrete
Heat Type
Forced Air, Natural Gas
Air Conditioning
Evaporative Cooling
Other Interior Features
Built-in Features, Eat-in Kitchen, Granite Counters
Sewer
Public Sewer
Substructure
Slab
Security Features
Carbon Monoxide Detector(s), Smoke Detector(s)
Other Exterior Features
Private Yard
Elementary School
Parr
Middle School
Moore
High School
Pomona
School District
Jefferson County R-1
Sales Price
$519,000
Real Estate Tax
$2,926/yr

Downloads

8199 Benton Way

Schedule a Tour

We would love to help you see this beautiful home! As a full-service brokerage, we can help you tour. Please submit an offer, and answer questions about the buying process.

Enter a valid email

Thank you

for your interest in 8199 Benton Way, Arvada, CO 80003

back to page
8199 Benton Way
Navigate
8199 Benton Way
explore in 3d

Follow Us On Instagram